Beschrijving
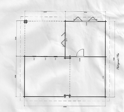
Zeer ruime Garage Miami 750x800cm, geleverd met een electrisch bedienbaren sectionaaldeur GD03 (incl. 2 afstandsbedieningen en een lamp op de motor), een vouwdeur DL01H, een vouwdeur VL02H een dichte paneeldeur DD03 en 3 vaste ramen PJ07. De Garage Miami wordt geleverd met een inpandige luifel van 400x350cm. Geleverd inclusief tussenwand (zie plattegrond)
De afgebeelde dakpanplaten zijn niet standaard.
De garage Miami is geheel aan te passen aan uw wensen !
Garage groot
Garage met meerdere mogelijk heden
Garage Miami bestellen of plaatsen
Wilt u meer weten of de mogelijkheden van garage Miami of over het plaatsen van garage miami, neem dan contact met ons op.
De Tuinhuis specialist
Ons werkgebied is het ’t Gooi en omstreken. Wij werken veel in plaatsen als Amersfoort, Baarn, Blaricum, Bussum, Eemnes, Huizen, Hilversum, Laren en Naarden. Ons bedrijf is zelf gevestigd in Eemnes waardoor wij de kosten voor u kunnen beperken.






